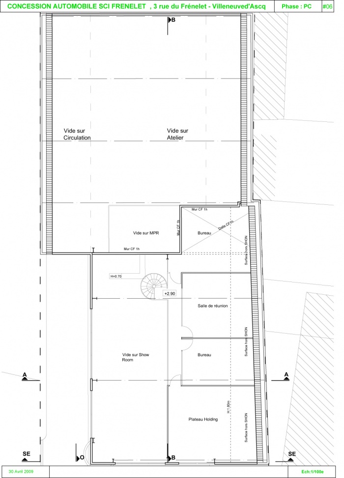
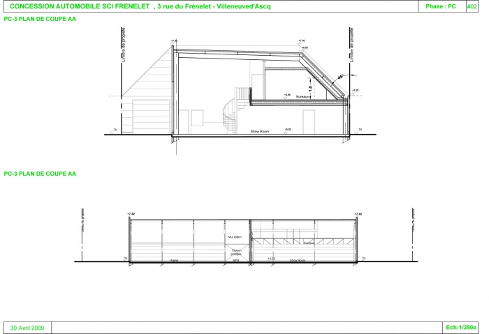
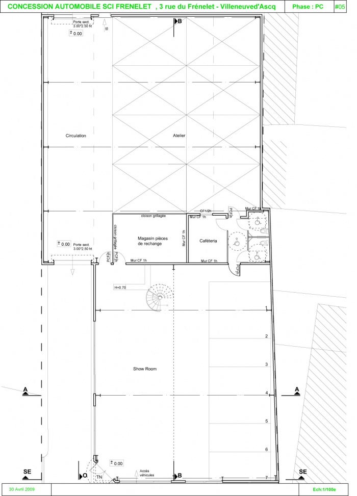
Concession automobile
Détails du projet
[x]
Destination: concession automobile
Lieu : Villeneuve-d'Ascq
M.O : GROUPE VERBAERE INVESTISSEMENTS
Surface : 600 m2
Cout des travaux : 350 000 HT
2009





